La humedad por capilaridad es una de las patologías más persistentes y mal resueltas en edificación. Afecta principalmente a plantas bajas y sótanos, deteriora revestimientos, genera sales, desconchones, pérdida de confort y, en muchos casos, se convierte en un problema crónico.
Ante esta realidad, el mercado ofrece soluciones que prometen eliminar la humedad sin obras invasivas. Entre ellas, los dispositivos de electroósmosis de campo electromagnético. Pero… ¿funcionan realmente?
En este artículo analizamos un caso real, documentado técnicamente por Hume Ingeniería durante más de un año, cuyo resultado es concluyente: el sistema de electroósmosis ensayado no consiguió secar los muros afectados por humedad ascensional.
Índice de contenidos
Contexto del estudio
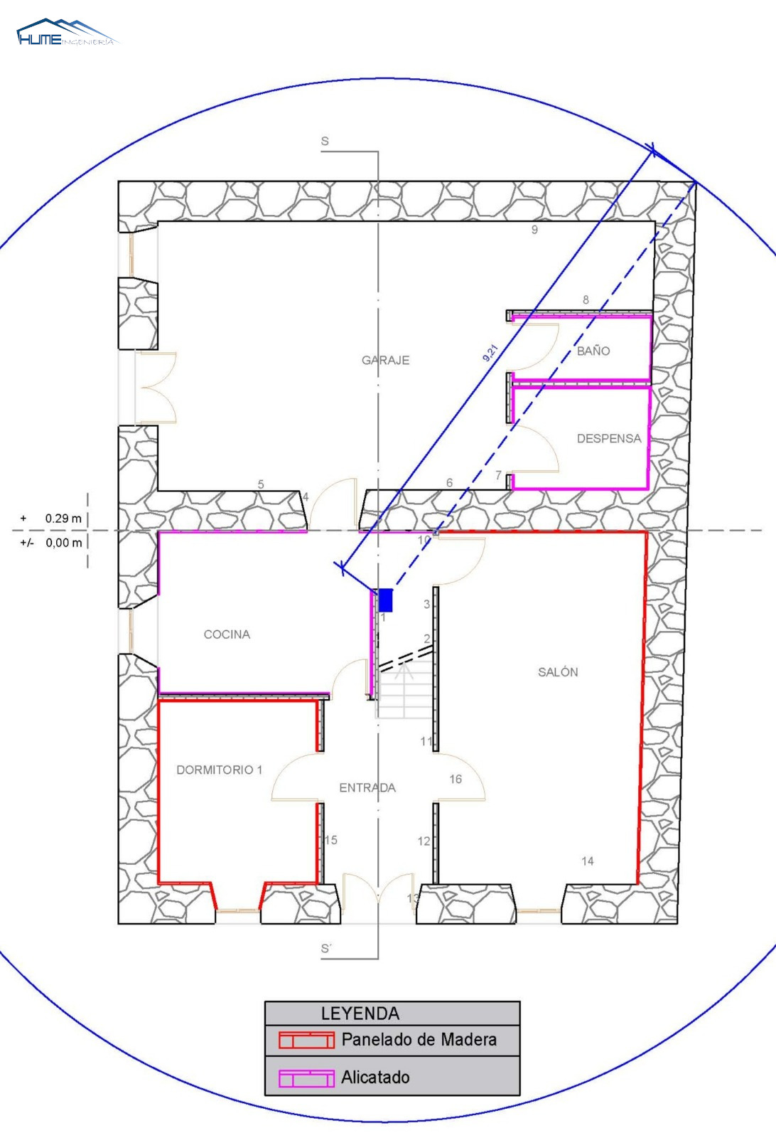
El estudio se llevó a cabo en una vivienda unifamiliar próxima a nuestra delegación de O Carballiño (Ourense).
Escogimos esta vivienda por una razón inmejorable: se trata de una edificación con una amplia casuística para el estudio, lo que nos permitirá valorar el efecto en distintos tipos de superficies (paredes de fábrica de ladrillo, muros de piedra de gran espesor, enfoscados de cemento, alicatados, panelados de madera, ladrillo visto, piedra vista…). Estamos ante una patología clara de humedad por ascensión capilar en planta baja, afectando a paredes de muy distinta tipología con acabados muy variados.
Antes de la instalación del equipo se documentó el estado inicial mediante mediciones sistemáticas en 16 puntos de control estratégicamente distribuidos por la vivienda. Estas mediciones constituyen la línea base sobre la que evaluar cualquier mejora posterior.
La instalación del dispositivo de electroósmosis se realizó siguiendo estrictamente las prescripciones del fabricante, que validó expresamente el método de medición y las condiciones de partida:
- ubicación centrada en planta
- altura de 100 cm desde la base del equipo
- funcionamiento eléctrico continuo
- ausencia de interferencias metálicas en el entorno inmediato
Es importante subrayar este punto: el sistema fue instalado correctamente y en las condiciones recomendadas, circunstancia acreditada por el vendedor. Por tanto, si el principio físico en el que se basa fuera eficaz, debería haberse producido una reducción progresiva y sostenida de los niveles de humedad.
Metodología de seguimiento
El control se efectuó con un higrómetro de contacto, utilizando siempre el mismo instrumental y los mismos puntos de medición para poder efectuar una comparativa concluyente. El primer registro se realizó en la fecha de puesta en marcha del equipo, y los controles se efectuaron periódicamente trasladando los resultados a la empresa distribuidora.
Al final fueron más de catorce meses documentando los porcentajes de humedad en cada punto. El objetivo era observar una tendencia descendente clara en el tiempo, compatible con el supuesto “secado” del muro que la electroósmosis promete generar.
Sin embargo, el comportamiento de los datos no refleja esa tendencia.
| Punto de control | Registro 19/02 | Registro 27/04 | Registro 03/06 | Registro 05/08 | Registro 04/11 | Registro 14/12 | Registro 28/04 |
| P. 1 | 40% | 40% | 49% | 43% | 27% | 27% | 35% |
| P. 2 | 35% | 35% | 35% | 35% | 52% | 75% | 75% |
| P. 3 | 40% | 55% | 40% | 45% | 38% | 38% | 25% |
| P. 4 | 95% | 95% | 95% | 95% | 80% | 80% | 80% |
| P. 5 | 60% | 60% | 95% | 90% | 90% | 80% | 85% |
| P. 6 | 95% | 95% | 95% | 95% | 85% | 85% | 90% |
| P. 7 | 14% | 17% | 22% | 25% | 18% | 17% | 16,5% |
| P. 8 | 70% | 70% | 58% | 60% | 52% | 60% | 55% |
| P. 9 | 85% | 85% | 95% | 90% | 68% | 60% | 65% |
| P. 10 | 60% | 65% | 68% | 60% | 58% | 60% | 65% |
| P. 11 | 65% | 65% | 70% | 77% | 65% | 55% | 65% |
| P. 12 | 25% | 28% | 26% | 33% | 24% | 29% | 35% |
| P. 13 | 55% | 50% | 41% | 48% | 50% | 50% | 45% |
| P. 14 | 22% | 23% | 27% | 33% | 14% | 33% | 25% |
| P. 15 | 11% | 10% | 8% | 11% | 8% | 9% | 11% |
| P. 16 | 40% | 50% | 45% | 60% | 43% | 40% | 45% |
¿Qué muestran realmente los datos?
Al analizar la tabla de medición expuesta arriba, se observa que en numerosos puntos los valores se mantienen extremadamente altos durante todo el periodo de seguimiento. En muros de piedra que inicialmente registraban valores del 95%, los porcentajes apenas varían y se mantienen en rangos del 80–90% tras más de un año de funcionamiento ininterrumpido del dispositivo.
En otros puntos, lejos de producirse un descenso progresivo, aparecen oscilaciones sin patrón definido e incluso incrementos significativos respecto a la medición inicial. Algunos paramentos que partían de valores moderados terminan registrando cifras superiores meses después.
Si el sistema funcionara conforme a lo que se anuncia comercialmente, deberíamos observar una curva de descenso progresivo, homogénea y sostenida en la mayoría de puntos. Lo que muestran los datos es, en cambio, una combinación de estabilidad en valores altos y ligeras variaciones que pueden explicarse por factores estacionales o ambientales, pero no por un proceso real de secado estructural.
La conclusión a la que se ha llegado tras más de catorce meses de funcionamiento continuo: los muros no presentan un comportamiento compatible con la eliminación de la capilaridad.
La importancia del tiempo en este tipo de ensayos
Uno de los argumentos habituales en defensa de estos sistemas es que “necesitan tiempo”. Precisamente por eso este caso resulta especialmente relevante. No se trata de una observación puntual de pocas semanas, sino de un seguimiento prolongado, con mediciones periódicas durante más de un año.
Ese periodo debería ser más que suficiente para detectar una tendencia clara si el fenómeno físico que se propone —la inversión del flujo capilar mediante campos electromagnéticos— tuviera efectos reales y medibles en el interior del material.
El hecho de que no aparezca esa tendencia descendente sostenida es, en sí mismo, un resultado. Consultado el fabricante tanto durante como a la finalización del ensayo, no se obtuvo respuesta de posibles explicaciones ni tampoco medidas correctoras que pudiesen revertir la inercia de los datos registrados.
Conclusión
A la vista de los registros obtenidos y de la duración del ensayo, el caso analizado permite afirmar que el equipo de electroósmosis instalado en esta vivienda no consiguió reducir de forma efectiva la humedad por capilaridad.
No se trata de una opinión, sino de una constatación basada en mediciones repetidas, documentadas y realizadas bajo condiciones controladas. La instalación fue correcta, el seguimiento fue sistemático y el periodo de observación fue amplio. Todo bajo seguimiento y validación del fabricante. Aun así, no se produjo el secado prometido.
La humedad ascensional es un fenómeno físico vinculado a la porosidad de los materiales, la presencia de agua en el terreno y la ausencia de barreras horizontales. Pretender eliminarla sin intervenir constructivamente en el muro exige una base científica sólida y resultados verificables.
Este caso real demuestra que, al menos en esta vivienda y bajo estas condiciones, la electroósmosis no resolvió el problema.
Y recuerda…
En Hume Ingeniería defendemos que cualquier solución frente a la humedad debe apoyarse en diagnóstico técnico, datos medibles y principios físicos demostrables.
Porque en ingeniería, las afirmaciones deben contrastarse con evidencias. Y cuando se mide durante más de un año y los valores no descienden, la conclusión es inevitable.









Deja una respuesta